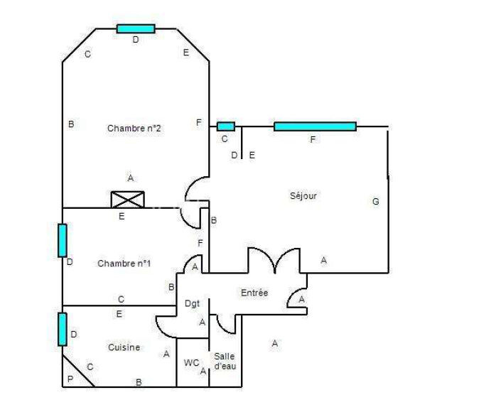
Réf : 03-2015 » Appartement DIEPPE - 3 pièce(s) - 85.24 m2
dieppe centre ville - Rue Victor Hugo - A louer appartement de type F3 de 85 m² hab.
au 3ème étage d'un bel immeuble bourgeois offrant : Entrée, beau séjour-salon de 30 m², cuisine aménagée et équipée, 2 chambres dont une de 23 m², salle d'eau avec douche et WC.
Excellent état.
Loyer : 780 euros et 30 euros de charges (eau froide , minuterie et entretien des parties communes - régularisation annuelle).
Honoraires à la charge du locataire : 852.40 euros TTC (dont 255.72 euros d'état des lieux).
LIBRE début janvier.
cet appartement 3 pièces à louer vous est proposé par l'agence immobilière join immobilier à dieppe.
Les informations sur les risques auxquels ce bien est exposé sont disponibles sur le site Géorisques : www.georisques.gouv.fr


